schwamberger architecture zt gmbh
startseite
büro
leistungen
aktuelles
gebautes
geträumtes
wettbewerbsvorbereitung / abwicklungen
kontakt
villa tschurtschenthaler
krankenhaus st.johann küche
adolf pichler platz bundesrealgymnasium
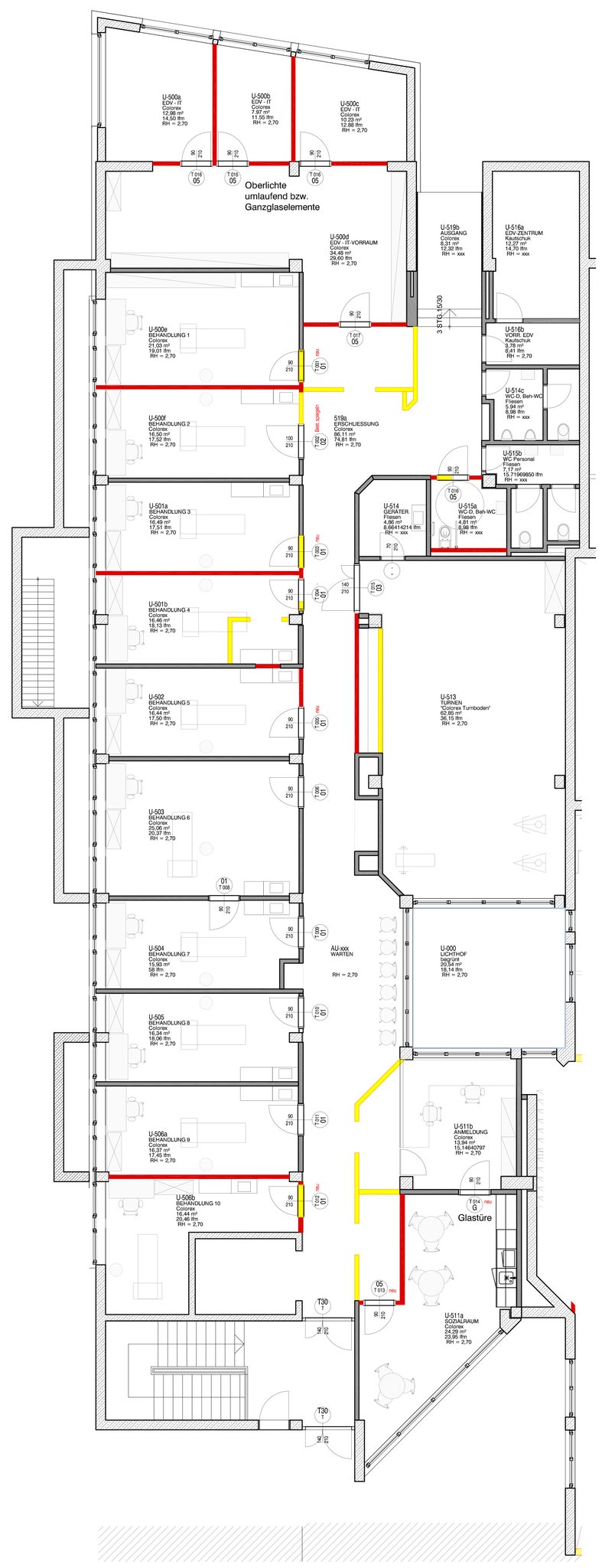
krankenhaus st. johann physio
asfinag abm plon
nef st. johann
asfinag mini wc's
bmkw ara innsbruck
zentralsterilisation tilak
bsz schwaz - aufstockung
schneeburggasse
ausstellung druckfrisch
tivoli - bauteil 1
installation mts
mentlberg
krankenhaus st. johann
bsz schwaz
stadtarchiv
sos kinderdorf
archiv
zuklappen